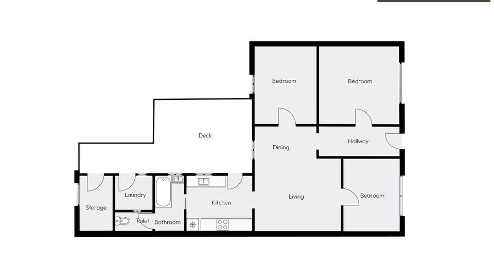
Step into this beautifully refreshed three-bedroom home, where modern updates meet cozy charm. Featuring three spacious double bedrooms, this home offers plenty of room for family living or guest accommodation.
At the heart of the home is a warm and inviting open-plan lounge, centered around a log burner—perfect for those cooler evenings. Flowing seamlessly from the living space, the kitchen is both practical and well-positioned, leading into a compact yet functional bathroom.
Outside, a sunny, well-appointed deck overlooks the flat, fully fenced section—a complete blank canvas ready for your personal touch.
Additional features include a separate laundry, a utility room for extra storage or workspace, and the comfort of freshly laid new carpet and updated paint throughout. Move-in ready and waiting for its next owners, this home is a fantastic opportunity not to be missed!