MILTON

154 Union Street, MILTON

SOLD

Contact for price

4 Bed

1 Bath

1 Living

2 Garage

220 m² Floor

1239 m² Land

Timeless Character Blended With Modern Comforts
(SOLD)

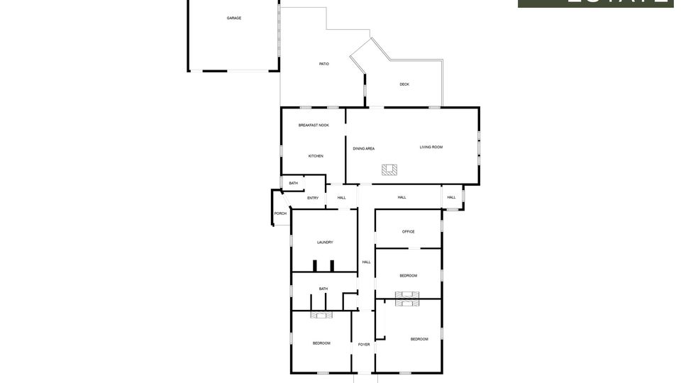
This pre-1920s home combines character and space in the heart of Milton, proudly positioned on a generous quarter-acre section along the main street. Its timeless traditional exterior is complemented by practical modern upgrades, including full rewiring, ceiling insulation, a ducted heat pump system, wood burner, double-glazed windows, and an updated iron roof. Step inside and you’ll find high ceilings, well-proportioned rooms, and a design that reflects the era while offering comfort for today’s living. The tidy interior features four bedrooms, a family bathroom, and a separate toilet providing excellent functionality for families.

Outdoors, the property continues to impress with a large double garage, substantial woodshed, and an expansive backyard that provides space to enjoy, garden, or further enhance. Blending historic charm with thoughtful modernisation, this home represents a rare opportunity to secure character, convenience, and space.

Read More

Specifications

Land Area
1239 m²
Floor Size
220 m²

Share this property

Floor Plans

No Results Found

Find Local Amenities

Locations